施設・利用目的

この施設は、アートにまつわるさまざまな利用目的に対応しています。
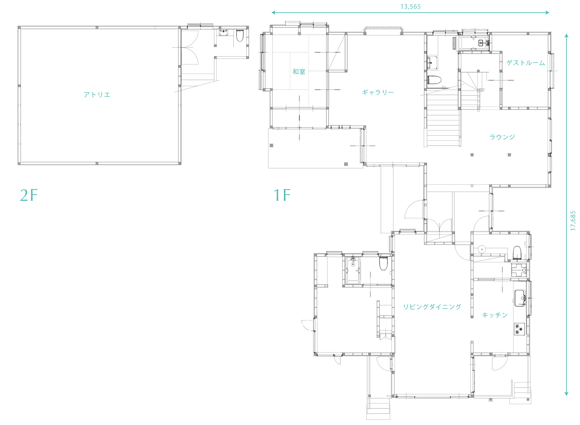
天井高6mの2階アトリエは、500号の大きな絵画からミニアチュール作品まで、集中して制作していただける素晴らしい環境です。
1階ギャラリーは、展覧会または絵画教室やワークショップ会場として、多くの方にアクセスしていただけます。
また、玄関ホール、ラウンジスペース、応接間、ゲストルーム、キッチンなど全館を使って、インスタレーション作品の発表、または展覧会のレセプションパーティなど、幅広い用途にご利用いただけます。
利用者のニーズに合わせた柔軟なサービスを提供し、快適で充実した時間をお過ごしいただけるよう努めています。

2F アトリエ
制作活動
約50㎡
天井高約6m
1F ギャラリー
展覧会・絵画教室・ワークショップなど
26.1㎡
全館
(玄関ホール、ラウンジスペース、応接間、ゲストルーム、キッチン)
インスタレーションやレセプションなど
建物全体:217.18㎡
庭・駐車場(3台)
建物含め:706.96㎡

お使いいただける備品:Wi-Fi、電源、エアコン(冷暖房)、トイレ、シャワー(事前予約)

利用時間及び休業日

9:30~17:00

  • 利用時間は入退室含めての時間となります
  • 1日単位、半日単位での貸し出しが可能です
  • それ以外の時間帯は、時間外料金にて1時間単位での利用が可能です
  • 24:00~6:00は閉館いたしますのでご利用いただけません
  • 年末年始(12月20日~1月10日)は休業いたします

料金

2F アトリエ
1日(7.5H /9:30~17:00)
10,000円
半日(3.5H /9:30~13:00または13:30~17:00)
5,000円
早朝料金・延長料金(6:00~9:30、17:00~24:00)
1時間あたり 2,000円
1Fギャラリー
1日(7.5H /9:30~17:00)
10,000円
半日(3.5H /9:30~13:00または13:30~17:00)
5,000円
早朝料金・延長料金(6:00~9:30、17:00~24:00)
1時間あたり 2,000円
全館貸切*
1日(7.5H /9:30~17:00)
50,000円
早朝料金・延長料金(6:00~9:30、17:00~24:00)
1時間あたり 10,000円

*アトリエでデモンストレーション、ギャラリーで展示、応接室でレセプションなど同時に行えます。
* 映画、ドラマ、広告写真撮影など、制作や展示に関連しない目的でのご利用については、都度お見積もりをさせていただきますので、お問い合わせください。

キャンセル料

当日・前日
100%
2日前
70%
3日~7日前
50%
10日前まで
0%

予約受付期間

利用日の前日から1年先まで予約可能

利用上の注意

  1. 強い匂いまたは大きな音の出る作品制作はお控えください
  2. 制作活動が⾵紀上または安全管理上、不適当と認められた場合、利用の中止をお願いすることがあります
  3. 室内は土足厳禁、安全な制作活動のためスリッパまたは上履きを推奨しています
  4. 施設内は完全禁煙、施設周辺での喫煙もお控えください
  5. 施設内にてレイアウトを変更された場合、退室されるまでに必ず元にお戻し下さい
  6. お客様がお持込み頂いたものは、全てご自身でお持ち帰り下さい
  7. 施設利用中、飲食は可能ですが、ゴミはお持ち帰りください。シンクにスープやドリンクなどの清掃が必要になる液体を流さないでください
  8. 施設の備品を持ち去ったり、紛失したり、汚したり、壊したりしないよう、十分な注意をもって丁寧に取り扱ってください
  9. 制作活動によって汚れた身体をきれいにする目的での浴槽、シャワーの利用を希望される場合は、必ず予約時にお申し出ください
  10. その他、常駐している管理人の指示に従って施設をご利用ください。また不明点等あれば遠慮なく管理人にお尋ねください

連絡先

info@galleryasia.jp

所在地

〒389-0111
長野県北佐久郡軽井沢町大字長倉1892-142
(別荘番号:南原3732)

アクセス

北陸新幹線 軽井沢駅より3km(タクシーで8分)
しなの鉄道 中軽井沢駅より2.5km(タクシーで5分)

[東京から軽井沢への交通手段とおおよその所要時間]
・新幹線(北陸新幹線 東京駅―軽井沢駅)で約1時間半
・車(関越自動車道 練馬IC―上信越自動車道 碓氷軽井沢IC)で約2時間